1

I want to make some laser cut mounting brackets for some Model B rev 2 (NOT model B+) - this is the Raspberry Pi with 2 mounting holes.

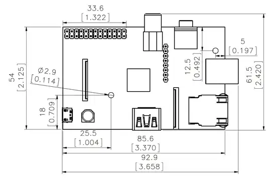
I can find a pdf with a cutting template but no 2d diagram or .dxf or .svg with the mounting holes and board outlines to scale.

Does anyone have a source for the dimensions?

JasperWallace
  • 111
  • 1
  • 4

1 Answers1

2

Raspiworld.com has a pretty solid looking dimensional drawing on their Raspberry Pi pages:

Raspi.com drawing of a Raspberry Pi model B

If you have access to the necessary software (Solidworks from the looks of things), you might also want a look at some of GrabCAD's user submitted models. There are a few here, here and here. These can vary a little in their accuracy, so take them with a pinch of salt.

goobering
  • 10,750
  • 4
  • 40
  • 64