TT217
| Theban tomb 217 | |
|---|---|
| Burial site of Ipuy | |
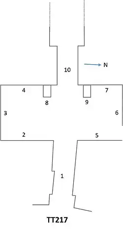
![]() Plan of TT217 | |
| Location | Deir el-Medina, Theban Necropolis |
| Discovered | Before 1894 |
| Excavated by | Arthur Weigall (1911-12) Metropolitan Museum of Art (1912, 1920) Kathrin Gabler (2021-) |
← Previous TT216 Next → TT218 | |
TT217, or Tomb of Ipuy, is the tomb of the ancient Egyptian artisan Ipuy and members of his family in Deir el-Medina, near modern Luxor, Egypt. Ipuy (also transcribed as Apy) was a sculptor active in the reign of Ramesses II of the Nineteenth Dynasty of Egypt.[1]
TT217 is situated on the upper terrace in the western cemetery of the ancient workmen's village of Deir el-Medina. The complex consists of a chapel within a walled courtyard and at least 10 subterranean rooms. The chapel's decoration depicts craftsmen at work in addition to daily life scenes.[2]
The tomb was first published by Jean-Vincent Scheil in 1894 but its location was later lost. The tomb was rediscovered by Arthur Weigall in his 1911-12 excavation season and subsequently excavated by the Metropolitan Museum in 1912 and 1920, and by Bernard Bruyère in the mid-1920s.[2][3] Since 2020 Kathrin Gabler has carried out further investigation and documentation of the tomb.[2]
Gallery
-
Building a Catafalque -
Fishing and Fowling -
Garden Scene -
Ipuy and Wife Receive Offerings from Their Children (restored) -
Man Making a Net -
Winemaking
References
Citations
- ^ Porter & Moss 1960, pp. 315–317.
- ^ a b c Gabler 2022.
- ^ Garis Davies 1927, p. 33.
Works cited
- Gabler, Kathrin (2022). "TT 217: La Tombe d'Ipouy (i) (Deir el-Médina (2021): Mission d'étude et de restauration)". Bulletin archéologique des Écoles françaises à l'étranger. doi:10.4000/baefe.6243. Retrieved 24 March 2024.
- Garis Davies, N. de (1927). Two Ramesside Tombs at Thebes. New York: The Metropolitan Museum of Art. Retrieved 10 February 2024.
- Porter, Bertha; Moss, Rosalind L. B. Moss (1960). Topographical Bibliography of Ancient Egyptian Hieroglyphic Texts, Reliefs, and Paintings I: The Theban Necropolis Part 1. Private Tombs (PDF) (1970 reprint ed.). Oxford: Griffith Institute. Retrieved 10 February 2024.
External links
Media related to TT217 at Wikimedia Commons- TT217 Project website
