Old State House (Little Rock, Arkansas)
| Old State House | |
|---|---|
![]() The south façade of Old State House | |
| Former names | Arkansas State House |
| Alternative names | Old State House Museum |
| General information | |
| Status | Used as a museum |
| Architectural style | Greek Revival |
| Address | 300 W. Markham St. |
| Town or city | Little Rock, Arkansas |
| Country | United States |
| Coordinates | 34°44′56.3″N 92°16′21.5″W / 34.748972°N 92.272639°W |
| Current tenants | Old State House Museum |
| Construction started | 1833 |
| Completed | 1842 |
| Client | State of Arkansas |
| Owner | State of Arkansas |
| Design and construction | |
| Architect(s) | Gideon Shryock George Weigart |
| Website | |
| oldstatehouse | |
| NRHP reference No. | 69000037 |
| Significant dates | |
| Added to NRHP | December 03, 1969[1] |
| Designated NHL | December 9, 1997[2] |
The Old State House, formerly called the Arkansas State House, is the oldest surviving state capitol building west of the Mississippi River. It was the capitol building of Arkansas from 1842 to 1912, when the new Arkansas State Capitol was completed.
It was the site of the secession convention, as well as the fourth constitutional convention when delegates agreed to ensure voting rights for freedmen and establish public education.
History
Construction

Commissioned by Governor John Pope, the State House was constructed between 1833 and 1842.[3] Architect Gideon Shryock, who previously designed the Kentucky State Capitol in Frankfort, chose a Greek Revival style for the building. The original design was too expensive for the territory, so Shryock's assistant George Weigart changed the plans and oversaw construction. The Arkansas General Assembly moved into the building while construction was ongoing. On December 4, 1837, in the first session of the General Assembly, Speaker John Wilson killed Representative Joseph J. Anthony in a knife fight on the floor of the state House of Representatives.
American Civil War
Unionists prevailed at an initial, March 1861, secession convention after the 1860 election of Abraham Lincoln. However, after South Carolina fired on Fort Sumter and Lincoln called up troops, on the morning of May 6, 1861, a second secession convention assembled at the State House. After intense debate, an ordinance of secession passed with five opposing votes. Four opposing delegates relented after unanimity was urged. Isaac Murphy, a delegate from Madison County, held out despite enormous pressure. After the Union victory at the Battle of Bayou Fourche in September 1863, Federal troops occupied the building for the rest of the war.
Reconstruction Era

After the American Civil War ended, the State House was the site of another constitutional convention to determine whether Arkansas would accept the Fourteenth Amendment to the U.S. Constitution, permit suffrage for black males over 21, and create public schools for both black and white children. After contentious debate, the proposals were approved in a new constitution that emerged in February 1868, and was ratified in March. Also during Reconstruction, the State House was an object of contention in the so-called Brooks–Baxter War, and was fortified during that struggle. The cannon "Lady Baxter" still remains on the State House grounds. As part of the Arkansas exhibit for the 1876 Philadelphia Centennial Exposition, a three-tiered fountain sat in front of the States exhibit building. The following year in 1877 the fountain was placed on the state house grounds. A recast of the original fountain now sits in its place. In 1885, an iron statue of the Three Graces, representing Law, Justice and Mercy, was placed atop of the State House, however it was removed in 1928.[4][5]
Changing use

The building served as a state capitol until the new capitol building was constructed in 1912. For a time it was used as a medical school. Afterwards, it served as an Arkansas war memorial and was used as an office building for federal and state agencies, as well as a meeting place for patriotic organizations. In 1947 the General Assembly approved acts designating the State House as a museum. The front entrance was the site of President Bill Clinton's presidential campaign announcement on October 3, 1991, and the site of his election night celebrations in both of his campaigns for the presidency on November 3, 1992, and November 5, 1996, respectively.[6] The building underwent major renovation in 1996, and it was designated a National Historic Landmark in 1997.[2][7] The building continues to serve as a museum with exhibits related to Arkansas history and culture. Permanent collections include battle flags, the inaugural gowns of the First Ladies of Arkansas, art pottery, and African-American quilts. Special exhibits are staged periodically as well.
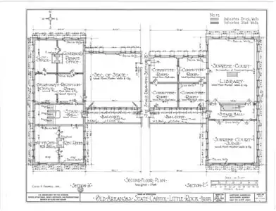
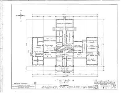
Interior
Floor plans
.tif.jpg)
.tif.jpg)
.tif.jpg)
See also
- David O. Dodd Memorial
- List of National Historic Landmarks in Arkansas
- List of the oldest buildings in Arkansas
- National Register of Historic Places listings in Little Rock, Arkansas
References
- ^ "National Register Information System". National Register of Historic Places. National Park Service. January 23, 2007.
- ^ a b "Old State House, Little Rock". National Historic Landmark summary listing. National Park Service. September 26, 2007. Archived from the original on April 17, 2002.
- ^ "Old State House Museum". C-SPAN. January 23, 2001. Retrieved October 31, 2019.
- ^ "Encyclopedia of Arkansas". Encyclopedia of Arkansas. Retrieved September 10, 2020.
- ^ "Three Graces Statue Arrives – Old State House". Daily Arkansas Gazette. February 11, 1886. p. 8. Retrieved September 10, 2020.
- ^ "Old State House Museum". Little Rock Convention & Visitors Bureau. Retrieved December 30, 2016.
- ^ Cynthia DeHaven Pitcock (July 29, 1997). "National Historic Landmark Nomination: Old State House" (PDF). National Park Service. Retrieved June 22, 2009.
{{cite journal}}: Cite journal requires|journal=(help) and Accompanying 42 photos, exterior and interior, from 1996–1997 (7.95 MB)
Further reading
- Historic American Buildings Survey (HABS) No. AR-32-1, "Old State Capitol Building, Markham & Center Streets, Little Rock, Pulaski County, AR"
- O'Donnell, William W. (1987). "Prelude to The Civil War Quadrennium". The Civil War Quadrennium: A Narrative History of Day-to-Day Life in Little Rock, Arkansas During the American War Between Northern and Southern States 1861–1865 (2nd ed.). Little Rock, Ark.: Civil War Round Table of Arkansas. pp. 1–14. LCCN 85-72643 – via Horton Brothers Printing Company.
External links
- Official website

- Friends of Old State House
Geographic data related to Old State House (Little Rock, Arkansas) at OpenStreetMap- Old State House Museum's channel on YouTube
